GFO Investments has unveiled 14 ROC, a striking 32-story luxury condominium located in Downtown Miami. Building upon the success of Gale Miami Hotel & Residences and Five Park, 14 ROC represents the latest addition to GFO Investments' prestigious portfolio. The architectural design of 14 ROC features a distinctive, rock-like base that ascends into the sky, showcasing interiors by the renowned March and White Design, where art and structure seamlessly merge.
283 Residences / 32 Stories.Studios, One and Two Bedroom Configurations.
Residences
Amenities
Location
Floor Plans
The Team
About Signature District
Prices & Payment plan
Contact Us
12 units per floor
Delivery 2028


This amenity-rich development will comprise approximately 283 units, offering residences with flexible rental terms.14 ROC offers a curated selection of urban luxury residences, ranging from sleek studios to expansive two-bedroom units spanning 417 to 951 square feet. Each residence boasts modern, open layouts, high ceilings, and private balconies that overlook the dynamic cityscape. These residence also include fixtures and furniture curated by MAWD, individually controlled energy-efficient central air conditioning and heating system, imported European-style kitchen cabinets, premium-grade appliances, custom-finished floors and walls in wet areas in bathrooms, and more!
Downtown Miami
Building Address:
125 NE 14th Street, Miami FL 33132
- Brickell: 15 minutes’ walk
- Museums & Arena: 3 minutes’ walk
- Train to Orlando: 10 minutes’ walk
- Wynwood: 5 minutes’ drive
- Miami Beaches: 15 minutes’ drive
- Miami Airport: 15 minutes’ drive

Nestled at 125 NE 14th Street, 14 ROC places residents in the heart of "The Signature District," an up-and-coming neighborhood anchored by the Signature Bridge, Adrienne Arsht Performing Arts Center, Pérez Art Museum, and the expansive Underdeck, a 33-acre green space connecting Downtown Miami to Edgewater.Its prime location ensures easy pedestrian access to iconic destinations, with connectivity to greater Miami and South Florida facilitated by the nearby Metromover and Brightline.
Prices | Location | Contact Us
Future residents of 14 ROC will enjoy access to 25,000 square feet of amenities spread across three levels, crowned by a rooftop pool offering panoramic views of Biscayne Bay and the Miami skyline.Additional amenities include a bar, grilling areas, a coworking lounge, private meeting rooms, a state-of-the-art fitness center, private workout studios, a yoga lounge with a terrace, locker rooms with steam room and sauna, karaoke room, game room, theater room, kids room, and a resident entertainment lounge with an open kitchen.



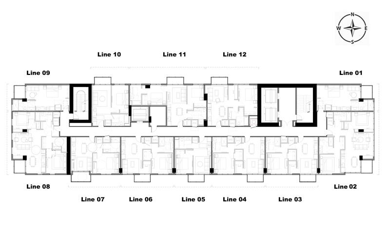
Click the Links below to Download the Floor Plans
| Type | Configuration |
|---|---|
| Res. A1 Line 01 | Studio / 1 Bath (460 SF) |
| Res. A1 Line 09 | Studio / 1 Bath (461 SF) |
| Res. B1 Line 05 | 1 Bed / 1 Bath (472 SF) |
| Res. B1 Line 10 | 1 Bed / 1 Bath (520 SF) |
| Res. B2 Line 07 | 1 Bed / 1 Bath (645 SF) |
| Res. B3 Line 03-04 | 1 Bed+Den / 1 Bath (653 SF) |
| Res. B3 Line 06 | 1 Bed+Den / 1 Bath (653 SF) |
| Res. B4 Line 12 | 1 Bed+Den / 1 Bath (667 SF) |
| Res. C1 Line 11 | 2 Beds / 2 Baths (776 SF) |
| Res. C2 Line 02 | 2 Beds / 2 Baths (982 SF) |
| Res. C2 Line 08 | 2 Beds / 2 Baths (1007) |

GFO Investments is a distinguished private wealth management advisory firm specializing in real estate development, hospitality operations, private financing, and capital market securities. With a steadfast commitment to fiscal discipline and success, the firm boasts a legacy of over 40 years of business excellence, operating independently, representing and investing solely on their behalf.The expertise and strategic approach enabled GFP to navigate diverse investment landscapes, delivering exceptional value and opportunities for growth.Some of the most outstanding condos developed by GFO include: 72 park, Gale, Five Park and Brickell Heights.


Studios from $509,000
1 Bedrooms from $651,000
2 Bedrooms from $973,000
20% Contract
10% Groundbreaking
10% 15th floor
10% Top off
50% Closing Q2/2028

Fill out this form for inventory and more information.
© 2024 Miami Residential Group. This website is an independent site. All the related information text and rendering provided by developer. This website, the information provided, including pricing is solely for information purpose and is subject to change without notice. For the correct representation make reference to the document by section 718.503 of the Florida statues, to be furnished by the developer and subject to change. This website cannot be relied upon as correctly stating the representation of the developer. We are not at all related to the developer in any way. Oral representation cannot be relied upon as correctly stating the representation of the developer. No federal agency has judged the merits or value if any of the property. This is not an offer to sell or solicitation to offer to buy, the condominium units in states where such offer or solicitation cannot be made. As Realtors we offer unbiased real estate representation to buyers and sellers. We offer individualized real estate services for you and not for the developer.